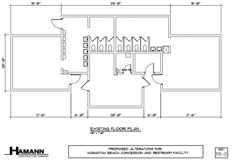
Neshotah Pavilion Q&A

The City of Two Rivers is exploring practical, cost-conscious improvements to the Neshotah Beach concession area. We are focused on ADA accessibility, functionality, and enhancing the beach experience for residents and visitors.  We’ve put together a clear, easy-to-read FAQ to explain what’s being considered, what’s not, and how this project could be funded.